<ul id="ge6mw"></ul>
  • <ul id="ge6mw"><tbody id="ge6mw"></tbody></ul>
  • <samp id="ge6mw"><tbody id="ge6mw"></tbody></samp>

    EG6K41J British standard open pneumatic diaphragm valve

    EG6K41J British standard open pneumatic diaphragm valve
    • sell:021-32051999
    • sell:021-32050777
    • fax:021-66099555

    Details

    • Product Introduction
    • Service Promise
    • Ordering Process

    Product description of EG6K41J British standard open pneumatic diaphragm valve


    Design and manufacture: GB122239


    Structure length: GB12221, JB1688


    Flange connection dimensions: GB4216, JB78 G6B41W non lined diaphragm valves


    G6B41J rubber lined pneumatic diaphragm valve, normally open diaphragm valve.


    purpose


    Usage: This valve is specially used to control non-corrosive or general corrosive media. There is no lining on the inner surface of the valve body or covered with a variety of optional rubber. It is suitable for different working temperatures and fluid pipelines.


    Applicable temperature: less than 85 degrees, less than 100 degrees, less than 120 degrees, or less than 150 degrees (according to lining and diaphragm material).


    Pressure level: PN0.6, 1, 1.6


    Material of main parts


    Body: cast iron, ductile iron, carbon steel, stainless steel.


    Bonnet: cast iron, ductile iron, carbon steel, stainless steel.


    Lining: no lining, rubber.


    Diaphragm: Rubber


    Disc: cast iron and carbon steel.


    Cylinder: ductile iron


    Piston: carbon steel


    Stem: carbon steel


    Hand wheel: Cast Iron


    test


    Lining layer: EDM test


    Test and inspection according to GB/T13297 standard


    Nominal pressure: PN (Mpa)


    Valve body: PN * 1.5


    Sealing: PN x 1.1


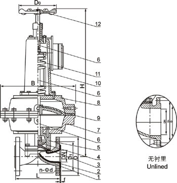
    Parts List: 1, Body 2, Body Lining 3, Diaphragm 4, Disc 5, Lower Stem 6, Cover 7, Cylinder 8, Piston 9, Spring 10, Cylinder Head 11, Upper Stem 12, Handwheel

    Main dimensions and weight
    DN
    mm
    公稱壓力
    MPa
    工作壓力
    MPa
    L
    (mm)
    D
    (mm)
    D1
    (mm)
    n-φd
    (mm)
    F
    (mm)
    H1
    (mm)
    H2
    (mm)
    D0
    (mm)
    B
    氣源壓力
    MPa
    氣源接頭
    in
    耗氣量
    cm3
    重量
    15
    0.6
    0.6
    125
    95
    65
    4-14
    2
    -
    -
    -
    -
    -
    -
    -
    -
    20
    139
    105
    75
    4-14
    2
    -
    -
    -
    -
    -
    -
    -
    -
    25
    145
    115
    85
    4-14
    2
    306
    320
    120
    94
    0.4
    10×1
    2.395×102
    7.5
    32
    160
    140
    100
    4-18
    2
    410
    430
    140
    120
    0.4
    12×1.25
    6.082×102
    14.5
    40
    180
    150
    110
    4-18
    3
    415
    435
    140
    120
    0.4
    12×1.25
    6.082×102
    16
    50
    210
    165
    125
    4-18
    3
    463
    488
    160
    185
    0.4
    12×1.25
    1.235×102
    24.5
    65
    250
    185
    145
    4-18
    3
    620
    660
    160
    245
    0.5
    16×1.5
    3.725×102
    30
    80
    300
    200
    160
    4-18
    3
    627
    687
    200
    245
    0.5
    16×1.5
    3.725×103
    51.5
    100
    350
    220
    180
    8-18
    3
    719
    769
    240
    330
    0.5
    16×1.5
    9.458×103
    86.5
    125
    400
    250
    210
    8-18
    3
    804
    872
    320
    380
    0.5
    20×1.5
    1.409×104
    133
    150
    460
    285
    240
    8-22
    3
    920
    1000
    320
    470
    0.5
    20×1.5
    2.868×104
    196.5
    200
    0.4
    570
    340
    295
    8-22
    4
    1145
    1265
    400
    470
    0.5
    20×1.5
    4.619×104
    279.5
    250
    680
    395
    350
    12-22
    4
    -
    -
    -
    -
    -
    -
    -

    The best quality, first-class service Qigao creates more value for you!

    "Qigao Valve" expects to continuously improve service quality and strive for excellence. "Sincere service" is the eternal theme of "Qigao". "Qigao" strictly followsIS09001-2000 Quality system certification requirements, strict quality control, responsibility to people, to ensure the healthy operation of production, sales and service. Strengthen communication with users and provide quality products to our customers with perfection and perfect service. Hereby our factory makes the following commitments:

    Product Standards:

    Products in strict accordance with ChinaGB、HG Standard and USAPISuch as standard design, manufacturing, acceptance. The hardness of the sealing surface meets the requirements of the state and the width exceeds the national standard.

    pre-sale service:

    Product introduction, technical exchange, non-standard product design, troubleshooting。

    Sale service:

    A trustworthy contract guarantees timely delivery and keeps in touch with customers. For special or duplicate products, our factory arranges technicians to use and troubleshoot the products for users.

    After sales service:

    1、"Qigao" brand product quality period is from the factory12In the month, the implementation of the "three guarantees" service (return, replacement, warranty).

    2、During the use of our products, our factory regularly organizes technical and quality inspection personnel to visit and consult users for feedback on product quality, usage status and improvement opinions, so as to further improve product quality.

    3、Respond quickly to the quality of user complaints, after-sales service personnel rushed to the scene in 24-36 hours (48 hours outside the province).

    4、For after-sales service, users are required to fill out the quality feedback information form after the service and make an appraisal opinion in order to improve the service quality of Qigao.

    1、If the customer has special requirements for the product, the following instructions must be provided in the order contract.:

    a、Structure length;

    b、Connection Type;

    c、Nominal diameter, full diameter, reduced diameter, pipe size;

    d、Operating medium and temperature, pressure range;

    e、Tests, inspection standards and other requirements

    2、The factory can configure various types of driving devices according to customer's specific requirements.。

    3、If the type and model of the valve are determined by the customer, the customer shall correctly state the meaning and requirements of the model and sign the contract under the condition that the supplier and the buyer understand each other.

    4、For futures and order customers, please call us in advance to tell the required valve model, specification, quantity, delivery time and location, and timely transfer to the factory account according to the total 30% deposit or full payment. The rest of the payment is pending. Import before shipment to arrange delivery in time.

     

    Order Process:

    1、Customer purchase list fax to021-33872143,Or call us 021-33872141

    2、Receive customer purchase list, provide valve model selection and quotation (price list)。

    3、Specific agreement: delivery date, special requirements, etc.。

    download Google:

    1、If the customer has special requirements for the product, the following instructions must be provided in the order contract.:

    a、Structure length;

    b、Connection Type;

    c、Nominal diameter, full diameter, reduced diameter, pipe size;

    d、Operating medium and temperature, pressure range;

    e、Tests, inspection standards and other requirements

    2、The factory can configure various types of driving devices according to customer's specific requirements.。

    3、If the type and model of the valve are determined by the customer, the customer shall correctly state the meaning and requirements of the model and sign the contract under the condition that the supplier and the buyer understand each other.

    4、For futures and order customers, please call us first to tell the required valve model, specifications, quantity, delivery time and location, and press the total30%The deposit or full payment will be remitted to our factory account in time., The rest of the payment will be remitted before shipment to arrange delivery in time.。

    Sale service:

    Trustworthy contract, guarantee timely delivery, keep in touch with customers at any time。

    For special or duplicate products, our factory arranges technicians to use and troubleshoot the products for users.

    After sales service:

    1、"Qigao" product quality period is from the factory12Month, practiceThree packsService (return, replacement, warranty)。

    2、During the use of our products, our factory regularly organizes technical and quality inspection personnel to visit and consult users for feedback on product quality, usage status and improvement opinions.,
    In order to further improve product quality。

    3、Respond quickly to the quality of user complaints, after-sales service personnel24-36Hours (outside the province48Hour) rushed to the scene。

    4、For after-sales service, the user is required to fill out the quality feedback information form after the service and make an appraisal opinion in order to improve the service quality of “Qigao”.。

    statement

    1. All text, data and pictures in this article are for reference only.EG6K41J British standard open pneumatic diaphragm valvePlease contact us at 4000-700-665 for details of performance, size and price.
    2. If there is no explanation, this article is original, reprint, please indicate the address of this article, thank you for your cooperation!
    <ul id="ge6mw"></ul>
  • <ul id="ge6mw"><tbody id="ge6mw"></tbody></ul>
  • <samp id="ge6mw"><tbody id="ge6mw"></tbody></samp>